Terrenos en venta

Madrid, Carabanchel
484.000 €
7 dormitorios 7 dormitorios
152 m2 152 m2
2 baños 2 baños

Terrenos en venta

Madrid, Carabanchel

Descripción anuncio

Agencia inmobiliaria de MADRID zona ABRANTES - PAN BENDITO oficina Tecnocasa vende CASA / TERRENO a escasos metros de Vía Lusitana y avenida de los poblados. Cabe destacar la tranquilidad, la consolidación, el buen ambiente que tiene el barrio y la comunicación de la zona a nivel de comercios y de los distintos medios de transporte que hay en la zona. El metro de Abrantes (línea 11) lo tenemos a 3 minutos y a solo unos pasos, de la línea de la EMT (118 - 47).

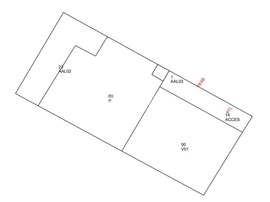
Se ofrece a la venta un inmueble singular, ubicado en una de las calles más representativas y comerciales de Abrantes, Camino Viejo de Leganés, una zona consolidada, con gran visibilidad, alto tránsito peatonal y rodado, y rodeada de todos los servicios necesarios para el día a día. Actualmente, la propiedad está compuesta por una vivienda de dos plantas, con un patio trasero y un almacén independiente en la parte posterior del solar. Se trata de un producto diferente, ideal tanto para quien busque una vivienda amplia con espacios exteriores, como para promotores e inversores que deseen desarrollar un nuevo proyecto inmobiliario en una ubicación estratégica. Uno de los principales atractivos de este inmueble es su importante potencial urbanístico, ya que el terreno permite edificar bajo + tres plantas, lo que lo convierte en una opción especialmente interesante para la construcción de un edificio residencial, viviendas plurifamiliares o incluso un proyecto de uso mixto (residencial y comercial).

Datos técnicos del solar: Fachada: 8 metros lineales, ideal para un proyecto con buena presencia exterior; Fondo del terreno: 19 metros lineales. Patio trasero (Fondo: 8,24 metros - Ancho: 8,06 metros). Estas dimensiones aportan una excelente base para una edificación eficiente y bien distribuida, maximizando el aprovechamiento del solar.

Ubicación estratégica:
La vivienda se sitúa en una calle comercial, con una oferta completa de servicios en su entorno inmediato: Colegios; Comercios de proximidad y grandes superficies; Ambulatorio y servicios sanitarios; Excelente comunicación mediante líneas de autobús.

Ver más

Características

Ref.:
642783
Libre:
Tipo de inmueble:
Media
Año de construcción:
1952
Ver más
Precio Precio
484.000 €
Cuota mensual Cuota mensual
€ 1.533 / mes

Otras características

Descripción del local
Baño Interior

Clase energética

E
E
E
E
E
E
E
E
E
Consumo de energia:
240 kWh/m² año
Emisiones:
48 Kg CO2/m² año
Año de construcción:
1952

Servicios cercanos

Transporte público Transporte público
Abrantes
Abrantes
310 m
Pan Bendito
Pan Bendito
560 m
Laguna
Laguna
2,3 Km
Doce de Octubre
Doce de Octubre
2,8 Km
Cº Viejo Leganés - Wenceslao
Cº Viejo Leganés - Wenceslao
40 m
Colegios Colegios
Colegio Santa Beatriz de Silva
160 m
Colegio Público Julián Besteiro
330 m
Antiguo Colegio Cervantes
340 m
Conservatorio Superior de Danza María de Ávila
390 m
I.E.S. Vista Alegre
410 m
Farmacias Farmacias
Farmacia - Calle Carrero Juan Ramón 22
110 m
Farmacia - Calle Fausto Domingo 11
130 m
Farmacia - Calle Camino Viejo de Leganés 171
160 m
Farmacia - Avenida de Abrantes 107
250 m
Farmacia - Plaza Duque de Módena 2
270 m
Hospitales Hospitales
Hospital Central de la Defensa Gómez Ulla.
1,7 Km
Clínica Dam
2,3 Km
Sanatorio Psiquiátrico Esquerdo
2,4 Km
Centro de Cuidados paliativos Laguna
2,6 Km
Hospital Universitario 12 de Octubre.
2,8 Km
Supermercados Supermercados
Ahorramás
340 m
Mercadona
430 m
Hipercor Vista Alegre
810 m
Dia
1,0 Km
Dia Market
1,3 Km
Tiendas Tiendas
Mini Market
580 m
1 kilo de pan
700 m
Pollería - Congelados
920 m
Presume moda y complementos
930 m
Tiendas
1,0 Km
Bar Bar
Bar El Encuentro
500 m
Bar Alfonsillo
500 m
Trote bar de copas
710 m
Kiosco
1,0 Km
Gambrinus
1,1 Km
restaurantes restaurantes
A'Brasas
510 m
Pica y Come
530 m
El Bloque de Ávila
700 m
Pulpería Botafumeiro
700 m
Taberna La buena viña
720 m
Ver más

Calcula tu hipoteca

Simple y sin compromiso
Entrada
%
al mes
Hipoteca
%
El resultado de esta simulación es orientativo. Los datos indicados no corresponden a condiciones reales de productos y no implican compromiso, obligación o vínculo jurídico-legal para el Grupo Tecnocasa.

Solicita un asesoramiento

Introduce tus datos
GRACIAS POR CONTACTAR CON NOSOTROS.
Esta oficina de Kìron se pondrá en contacto contigo lo antes posible para ofrecerte un asesoramiento financiero más completo y acorde a la información que nos has facilitado.
Franquiciado
Estudio Carabanchel Abrantes Sl
Calle Camino Viejo de Leganés, 263 Local A 28025 Madrid (M)
Calle Camino Viejo de Leganés, 263 Local A 28025 Madrid (M) Zona: ABRANTES
Lunes a Viernes 09:30 - 14:00 / 17:00 - 21:00 Sábados 10:00 - 14:00 / 17:00 - 20:00

Nuestro equipo


  • Maylyn Navia
    Franquiciado

  • Sebastian Vaca
    Colaborador

  • Kevin Figueroa
    Colaborador

  • Melany Caseres
    Colaborador

  • Jonathan Chavez
    Colaborador
Franquiciado
Estudio Carabanchel Abrantes Sl
Calle Camino Viejo de Leganés, 263 Local A 28025 Madrid (M)

Franquiciado
Estudio Carabanchel Abrantes Sl
Franquiciado
Estudio Carabanchel Abrantes Sl

2026 Ibero Group Tecnocasa Services, S.L.U. - CIF B-65870776 - C/ Pallars, nº 1-3 Parque de Negocios Mas Blau II, 08820, El Prat de Llobregat (Barcelona-España). Red en franquicia - Cada sociedad franquiciada tiene su propio titular y es independiente del franquiciador.

Política de privacidad | Aviso legal | Pólitica de las Cookies | Información al consumidor | | Canal ético